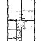
Grubbens 4

Bostäder i St: Eriksområdet

De bevarade 1800-tals flygel- och ekonomibyggnaderna
från S:t Eriks sjukhus har byggts
om och till största delen fått nytt innehåll.
Flygelbyggnadernas trapphus vid husens
gavlar, befintliga hjärtväggar och delvis bibehållen
exteriör var några av förutsättningarna.
Tre lägenheter per plan och nya vindslägenheter
blev lösningen. Nya takkupor och
befintliga mezzaninfönster ger vackert ljus
och utblickar i vindslägenheterna. Horisontella
fasadlister och tryckta valv över fönster
har återställt ursprungliga fasader.
Före detta köksbyggnaderna har inretts med
relativt stora lägenheter och terrasser medan
den äldre tvättbyggnaden fått stora öppna
ateljélägenheter med överljus och etagé.

x
Projektnamn Projektkategori Projekttyp Byggår
Acapulco Restaurering & ombyggnad Flerbostadshus 2014
Åland Husbyggnad Flerbostadshus
Aqua Husbyggnad Flerbostadshus 2018
Ateljehus Husbyggnad Flerbostadshus
BEBYGGELSESKISS Stadsplanering Förtätning
Bebyggelseskiss Stadsplanering
Briljanten Husbyggnad Bostadshus,
Flerbostadshus,
Förtätning
2010
Eira 2017
Englandshusen Husbyggnad Bostadshus 2015
Flerbostadshus Lindbacken Husbyggnad Flerbostadshus
Förskolan Lindbacken Husbyggnad Förskola 2013
Förskolepaviljong Husbyggnad Skola 2016
Gårdsanläggning Restaurering & ombyggnad Flerbostadshus 2019
Golfklubben Bostadshus
Gotland Husbyggnad Bostadshus,
Villa
2019
Grubbens 4 Husbyggnad Flerbostadshus 1998
Grubbens 6 HusbyggnadRestaurering & ombyggnad Flerbostadshus 1997
Handelsbyn 2.0 2019
Huddinge Husbyggnad Flerbostadshus 2018
Husfrun Husbyggnad Bostadshus 2013
Icarus Husbyggnad Bostadshus,
Flerbostadshus
2011
Josef Frank Utställning 2007
Konradsberg Husbyggnad Flerbostadshus 2004
Kungsträdgården Husbyggnad Paviljong 2004
Långholmen Restaurering & ombyggnad Paviljong 2015
Lilla skutviken Husbyggnad Flerbostadshus 2009
Limone Bostadshus 2016
Limone 4 Husbyggnad Flerbostadshus 2017
Lindbacken Stadsplanering Bostadshus,
Flerbostadshus
2011
Lindbacken handelsby Husbyggnad Lokaler 2018
Lindhagen 1 Husbyggnad Bostadshus 2015
Lindhagen 2 Husbyggnad Flerbostadshus 2016
Lotsberget Husbyggnad Bostadshus,
Flerbostadshus
Manillaskolan Restaurering & ombyggnad Skola 1995
Modulhus A Husbyggnad Bostadshus,
Flerbostadshus
2020
Modulhus B Husbyggnad Bostadshus,
Flerbostadshus
2020
Mosebacketerrassen Husbyggnad Paviljong,
Servering
2019
Norra Förskolan Förskola 2018
Nya Radhusen Husbyggnad Flerbostadshus 2018
Östanå Bostadshus
Parhus Husbyggnad Bostadshus
Parhus - Etapp 4:1 Husbyggnad Flerbostadshus 2018
Paviljong vid Salsta Slott Husbyggnad Tillbyggnad 2004
Plankan HusbyggnadStadsplanering Bostadshus
Radhus - Etapp 4:1 Husbyggnad Flerbostadshus 2018
Raoul Wallenberg Utställning
Rörstrand Restaurering & ombyggnad
Rosenhaneska Palatset Restaurering & ombyggnad 2002
Skålen Husbyggnad Flerbostadshus,
Skola
2008
Skogsbrynet Husbyggnad Bostadshus
Skogsglänta
Södra Parkvillorna Husbyggnad Bostadshus,
Villa
2014
Södra Teatern Restaurering & ombyggnad Lokaler
Stuten Restaurering & ombyggnad Lokaler 2018
Styrmannen
Talludden Husbyggnad Bostadshus,
Flerbostadshus
2005
Tegelbruket Husbyggnad Flerbostadshus 1906
Tegelpråmen Husbyggnad Flerbostadshus 1906
Utredningsskiss Stadsplanering
Utredningsskiss Stadsplanering
Vaksala Lunda HusbyggnadStadsplanering Bostadshus,
Flerbostadshus
Vallgossen HusbyggnadRestaurering & ombyggnad Bostadshus,
Förtätning,
Tillbyggnad
2018
Vapiano Husbyggnad Tillbyggnad 2011
Vårdboende 2019
Vasaparken Paviljong
Västra Parkvillorna
Vibble Husbyggnad Villa 2018
Villa Åkerman Husbyggnad Villa 2019
Villa Folhammar Husbyggnad 2009
Villa Lovas Husbyggnad Villa 2003
Villa på Resarö Husbyggnad Villa 2018
Villa Sivan Husbyggnad Bostadshus,
Villa
Villa Västerhejde Husbyggnad Villa